NEU
Sofort verfügbar, Lieferzeit: 1-3 Tage
Artikelnummer:
77892
Hersteller:
Gretsch-Unitas
EAN:
4015596515971
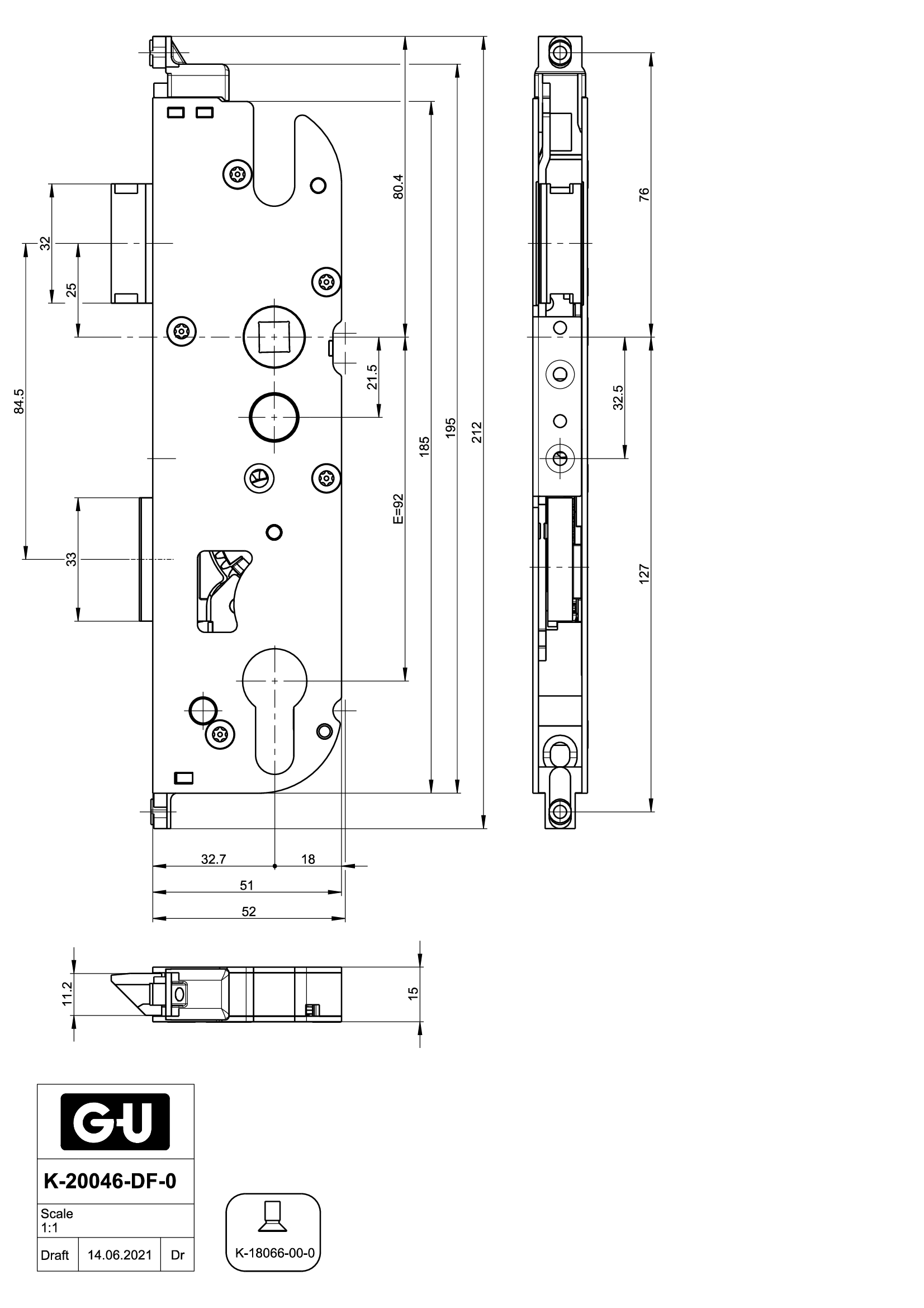
Details zu "Hauptschloss für manuelle GU-Mehrfachverriegelung K-20046-DF-0-1 / 35-Dorn / 92mm / 8 mm Drückernuss"
• Hauptschloss für manuell verriegelnde GU-Mehrfachverriegelungen / Verschlusssysteme: SECURITY
• 8 mm Nuss
• Dornmaß: 35 mm (beim abmessen des Dornmasses muss das Stulpblech (3 mm) mitgemessen werden!)
• 92 mm Entfernung
• inkl. Schraubenbeutel-Set
Bitte beachten Sie dass der Abstand von Oberkante Falle bis zur Mitte vom oberen Befestigungsloch am Schlosskasten 35 mm betragen muss. Falls der Abstand 27 mm beträgt kann der Schlosskasten nicht getauscht werden und es muss eine neue Verriegelung eingebaut werden.
• KBV Artikelnummer: 77892
• 8 mm Nuss
• Dornmaß: 35 mm (beim abmessen des Dornmasses muss das Stulpblech (3 mm) mitgemessen werden!)
• 92 mm Entfernung
• inkl. Schraubenbeutel-Set
Bitte beachten Sie dass der Abstand von Oberkante Falle bis zur Mitte vom oberen Befestigungsloch am Schlosskasten 35 mm betragen muss. Falls der Abstand 27 mm beträgt kann der Schlosskasten nicht getauscht werden und es muss eine neue Verriegelung eingebaut werden.
• KBV Artikelnummer: 77892
Gretsch-Unitas